發布時間:2023-06-13閱讀:

揭西,位于廣東省東部
資源豐富,交通便利
作為我國著名的革命老區和僑鄉
隨著經濟的不斷發展,揭西旅游業發展很快
打出“韻味獨特潮客風,綠色生態揭西游”的品牌
現已成為粵東地區的旅游勝地之一




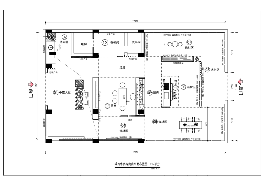
揭西旗艦店總面積219㎡,設計師將它打造集空間、展示、選材為主的柔光體驗館,整體設計創新而又立體,整個空間年輕時尚,前臺區域背景墻作為公司的品牌IP輸出,加強品牌形象的視覺效果,突出了品牌調性。


茶室作為重要的洽談區域,灰色背景墻大氣優雅,去裝飾重質感,構筑一個開放、詩意、令人精神愉悅的空間,拉近與消費者之間的距離感。
作為重要的選材區域,設計師塑造空間的流暢度與通透感,將空間以合理利用,人流導向順暢、引導性強,無死角;區域劃分明顯,功能齊全;選材與展示為一體,方便參觀和選擇。





應用華鵬陶瓷硅藻泥科技墻板,打造出一個極具童趣的空間,該墻板采用“環保科技板材+環保PUR熱熔膠+環保EBPP飾面材料”組合而成,產品達到E1級甲醛釋放量標準,遠低于國家標準規定的空間VOC及板材甲醛含量,無需放置,實現即裝即住的環保要求,為消費者給兒童打造一個健康舒適的空間提供范本。
項目名稱|揭西旗艦店
項目位置|廣東 揭西
項目面積|219m2
設計公司|華鵬陶瓷設計部
參與設計|陳泳因、張業偉

揭西旗艦店平面圖
揭西旗艦店地址:
廣東省揭陽市揭西縣錢坑鎮錢東奇旭建材
2019年華鵬陶瓷與廣州設計周攜手首度以倡導做有溫度的居住空間設計發起了金住獎 ,金住獎的宗旨與華鵬一貫秉承舒適、安全、健康的理念相契合,這也是多年來華鵬陶瓷與廣州設計
漯河旗艦店總面積320㎡,設計師將它打造為“沉浸式”柔光體驗館,整體結構簡潔干凈,賦予了空間靈活的變換性,前臺區域背景墻作為公司的品牌IP輸出,加強品牌形象的視覺效果,突
12月6日,金住獎-2019金住之夜暨中國十大居住空間設計師頒獎晚宴盛大召開,金住獎全國十大居住空間設計師最終揭曉,見證了最懂中國居住空間設計師的誕生。